
此帖已成功报名2018家装日记大赛。更多家装信息关注MY0511家装频道
楼主今日掐指一算,适合开贴,这不就来了么
楼主夫妻不是本地人,当年来镇上学,留在此处安营扎寨,一晃居然15年了。在这买房,结婚,生娃,换房,二子……生命不休,折腾不止啊。随着孩子逐渐长大,考虑上学问题,加上家有二个宝贝,我们也只能咬咬牙,不落俗套的买了学区房。在房价飞涨之初,我大着肚子,跟着中介,不停地看房,和这房子也是有缘,中午看房,晚上就签合同了。后期房价飞涨时,房东有心涨价另卖,最后也没实现。不过,房东还是基本靠谱的,不然真要耍赖,我们也是没有办法的。后面就是手续办理,因为房价飞涨,银行牛叉了,二手房轻易不肯贷,要贷还要加条件。外加,我家当家的,有几次还贷不及时的记录,使得我们的贷款之路跌跌撞撞,最后,还好险险的全部搞定,阿弥陀佛啊!房子买好,就要考虑装修。楼主家目前住的房子是5年前半包,记忆真心不美好,为啥呢?水电装修结束,设计师跳槽走人了,没人在管我们,以至于出现,床和开关相距甚远,反正冬天,楼主是不愿意起来关灯的
这套房装修前,因为前次不美好的装修记忆,加之目前装潢公司那叫一个多啊,所以迟迟没有选定装潢公司。最初是想在朋友公司做,后来听多了装修不要找朋友的说法,为了咱以后能一直友好相处,还是没有选择。兜兜转转,机缘巧合下,我们结识了易兆,那天下午4点半约了董工去量房,至今,我也没法把他和时尚的设计师划上等号,因为他实在是太憨厚了。在后期的接触中,我家当家的也很认可,所以,在经过出平面图,报价的一番探讨后,情定易兆。希望我们的选择是正确的
(之前选择的是小姑娘,容易跳槽,这次选择的是“老杆子”,应该不会出现提前撤的情况了吧
)为了督促自己不偷懒,顺便观望下建材商家,今日特来开贴。希望在装修路上结识更多的装友,让这漫漫装修路上能够多多苦中作乐。也希望自己家装修能够顺顺利利,平平安安!
【小区名称】:松盛
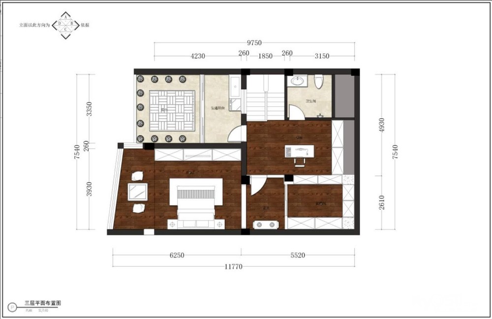
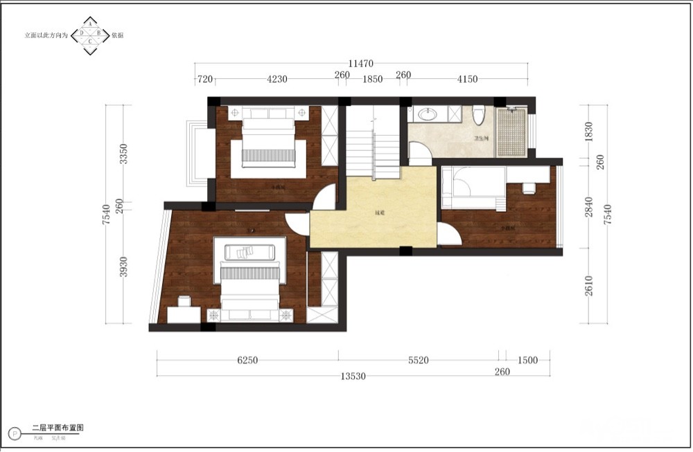
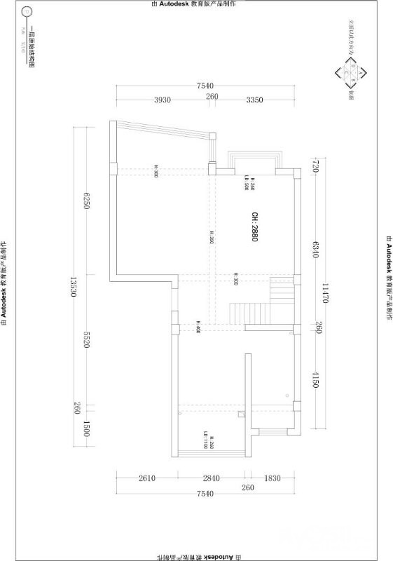
【所在楼层】:5+6+阁楼
【建筑面积】:177+44阁楼
【装修风格】:简欧+简美的混搭
【包工方式】:半包
【装修公司】:易兆,设计师:董兆典,项目经理:柯鹏
【开工日期】:2017年12月16日
【装修预算】:荷包不厚,只能紧缩,理想化的50,希望能够坚守住
[ 本帖最后由 xuqiao7441837 于 2018-12-28 09:45 编辑 ]










)



恭喜开贴













