收藏本站
客户端
扫码下载客户端
官方微信
打开微信扫一扫
登录
|
注册
|
标题
标题
用户
全站首页
|
论坛导航
|
网络问政
|
招聘求职
|
买房租房
|
装修频道
|
生活服务
|
教育
|
相亲
|
亲子
|
美食
|
婚嫁
|
手机客户端
家有学子
|
母婴乐园
梦溪论坛
»
镇江二手房/镇江租房
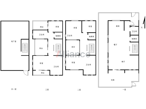
» 金山 M碧桂园滨湖湾联排别墅边户293平米环绕大花园有地下室车位 五室及以上
镇江二手房/镇江租房
更新房源:
515
中介发布房产信息、疑问与建议请联系
13236380286
我的房源
我要卖房
我要出租
门面交易
[二手房] 金山 M碧桂园滨湖湾联排别墅边户293平米环绕大花园有地下室车位 五室及以上
短讯
330
万元
五室及以上
293 平方米
11263元/平米
户型
建筑面积
单价
别墅
毛胚房
金山
楼层(共)
装修
区域
小区名称:
碧桂园滨湖湾
小区地址:
M碧桂园滨湖湾联排别墅边户293平米环绕大花园有地下室车位
联系人:
华鑫房产
请微信扫描右侧二维码拨打联系电话
房源信息
2026-3-28 14:41 发布
房屋性质
商品房
建筑结构
框架结构
其他说明
碧桂园滨湖湾联排别墅边户293平米环绕大花园有地下室车位
联系人
毛 (女)
联系电话
请微信扫下方二维码拨打
房源图片
周边地图
房价趋势
该中介的推荐房源
中南世纪城3期 2室精装带书房 采光好 低价急卖 看房方便
49.8
万
90平方米
M碧桂园滨湖湾联排别墅边户293平米环绕大花园有地下室车位
330
万
293平方米
我家山水彩虹苑 单身公寓 朝南采光好 精装 急卖 江滨新村
29
万
51.04平方米
M景天花园带大平台400左右车位拎包入住三室二厅
120
万
133平方米
外国语学区房 京岘山路 3室东边户 有车库 急卖 京口路
33
万
90平方米
F凌家湾 三开间朝南 小高层带车车库 阳光好
46.8
万
121平方米
F中南望江小高层 江景房 三室朝南 毛坯 聆江阁
117
万
133平方米
F尚海花园一楼精装带80平花园 已开门,全天采光 急售 急售
96.8
万
115平方米
富力天禧院 167平精装地暖中央空调 江景房 北固湾京源里
218
万
166平方米
招商北固湾5期 上叠可看江景 5室已改造好 有车位 急卖
430
万
165平方米
Powered by
Discuz! X 2
0.013919 s
清除 Cookies
-
镇江网友之家
-
手机版
论坛导航
关闭