
项目地址:镇江景天花园
主案设计:王泰巍
设计公司:鸿鹄设计
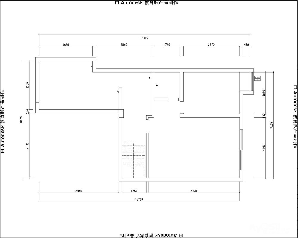
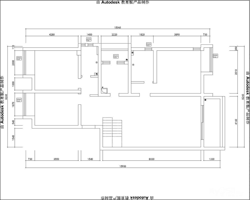
原始结构


空间布局


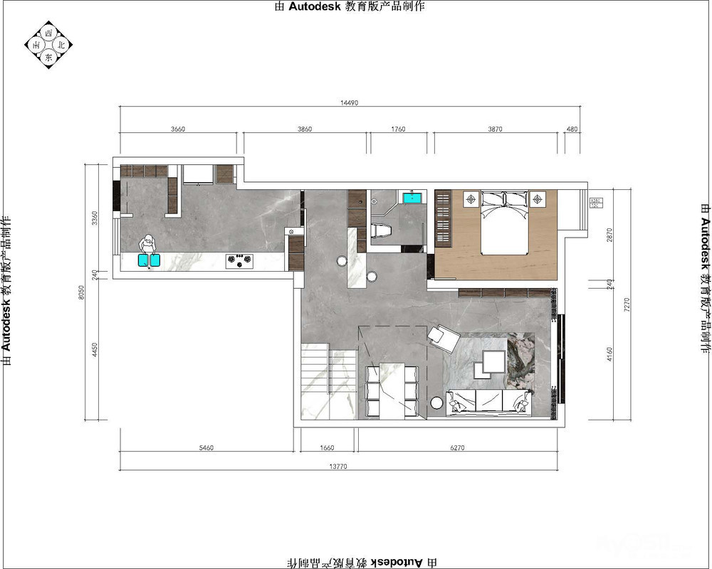
设计之初业主找到我们,明确的提出自己对房子的规划非常不满意,
因为这个户型是一楼带地下室的,厨房餐厅在一楼,而客厅在负一楼,入户门以及车库也在负一楼,
动线规划是非常不合理的,所以在功能布局上进行了大刀阔斧的改动。
1.把车库改成厨房,入户门处设计独立玄关
2.中西厨分离
3.把餐厅移到负一楼,做挑空设计
4.一楼原本厨房改为茶水间,储物间,增加储物功能
实景照片





▲亚光的水泥灰,冰冷的石材,温润的木饰面,似乎矛盾却又完美融合,体现了极简的浪漫。




▲餐厅的挑空,弱化了原本压抑的层高,也把二楼的光线引到一楼,大量玻璃材质的运用,使各个空间开阔和通透。


▲空间、尺度、序列、横向开阔,不管是任何一种设计手法,都不破坏空间里的简约感。



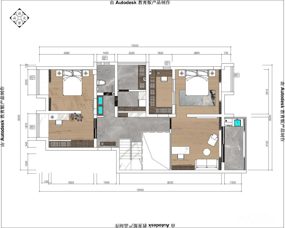
▲主卧空间延续整体空间色调,套房设计,配套独立衣帽间、书房以及阳台,为生活带来舒适尊享体验。

▲潮流文化也是当代年轻人家里不可缺少的一部分。
屋主日记:http://bbs.my0511.com/f95b-t7054525z
[ 本帖最后由 my0511唐老鸭 于 2020-8-7 09:30 编辑 ]













