
此帖已成功报名2016家装日记大赛。更多家装信息关注MY0511家装频道
题记:
山不在高,有仙则名。水不在深,有龙则灵。斯是陋室,惟吾德馨。
--孔子云:何陋之有?
15年年底,拿到新房很开心,终于要有两人的小窝了
没事就泡在论坛里研究各种贴子,像无头苍蝇一样什么都看,没有顺序,没有主次
今天无意整理跑建材材料,发现有好多经验,好多东西自己捂着太可惜了,
想想还是写个帖子,有好东西就一起分享哈吧
这是我今天开贴最主要的原因
其次希望大家装修方面也给点意见,或者建议
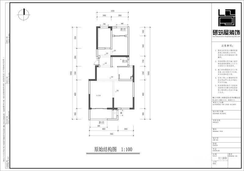
【小区名称】:江山名洲观澜
【所在楼层】:7/11
【建筑面积】:91.43+8(做小书房)
【装修风格】:本来准备美式;因为面积不大,选择小美;美式好烧钱,都想现代了
【包工方式】:半包
【装修公司】:研筑屋 ,尤逸(设计费保密)
【开工日期】:2016年03月20日
【装修预算】:除家电家具部分20W
【户型图片】:


从年前开始跑装潢公司,终于最后敲定了研筑屋
3月16日签了合同,尤大帅哥让我们选个好日子开工
看看万年历,就挑最近的日子,3月20日春分,9:28开工~~~
重要的事情鼓掌三次!!![ 本帖最后由 my0511菲雪 于 17-5-12 16:27 编辑 ]






)
。


赶紧装好了,我去参观



