
MY0511家装样板房直通车是为即将装修的童鞋打造的装修体验式活动
零距离走进各小区正在装修或装修好的样板房
从业资深人士在工地进行现场讲解设计/施工知识/答疑解惑
如果您即将准备装修,赶快加入我们吧!

活动时间:2019年2月23日(周六)下午
集合地点:万达喜来登门口大巴集合
(不是酒店里面哦~活动前一两天小编会发大巴车牌号给大家的)
集合时间:2月23日13:00
样板房提供单位:

【点击图标了解装饰/设计公司详情】
样板房地点及进度:
乙品装饰: 德林艺墅[整体完工]
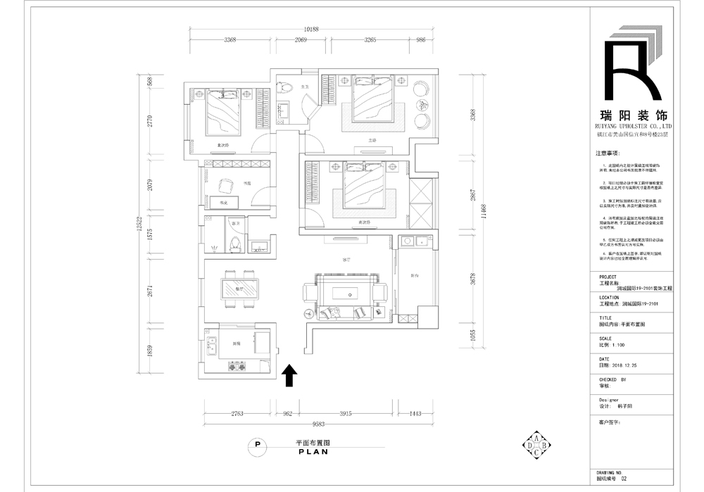
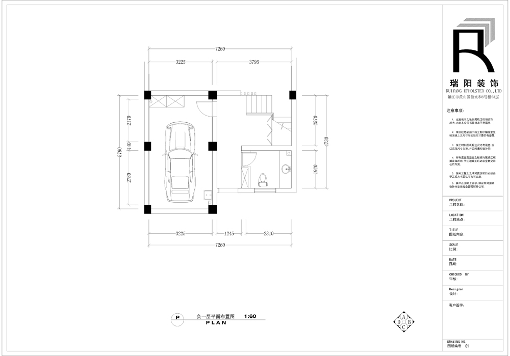
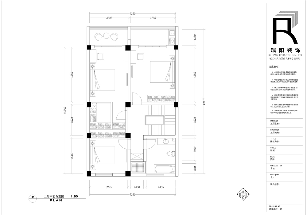
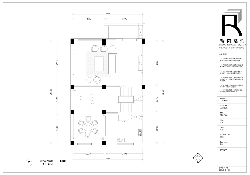
瑞阳装饰: 润城国际[水电施工] 悠然居[整体完工]
参观路线:
万达——德林艺墅——润城国际——悠然居——万达
搜索小妖微信号报名:775967213
参加MY0511样板房直通车的好处
【理由一】直击施工现场,了解施工工艺与装修过程
【理由二】设计师、监理现场陪同讲解装修细节,解决装修疑问
【理由三】网友之间互动交流,分享宝贵装修经验
【理由四】公益活动全程免费,空调大巴风雨无阻
【理由五】施工和完工样板一个不缺,感受装修多环节
【理由六】设计师一对一解析您家户型,免费答疑解惑
看样板房注意事项
1.为了不耽误大家时间,请同学们尽量准时到集合地点集合
2.有待装房平面图的朋友可带上图纸,方便设计师现场一对一解析
3.受客观因素制约,每户仅限2个参与名额
4.整个活动的时间不短,并且工地环境不太适合小孩子待,所以请大家尽量避免带上小孩
5.活动过程中请参观的同学跟随设计师(监理)的讲解顺序看样板房,以便您更全面了解样板房施工工艺、工程造价和装修注意事项等
6.设计师讲解完后可以提出您的疑问,可不要害羞~
7.请大家配合保护好施工现场哦,因为这个也是别人的家
[ 本帖最后由 my0511小妖 于 2019-2-22 17:13 编辑 ]



































