





一个不错的户型,空间很大,视野光线都不错。
只是原来的设计利用率太低 储物空间太少没法满足用户的需求。缺少晾晒空间。
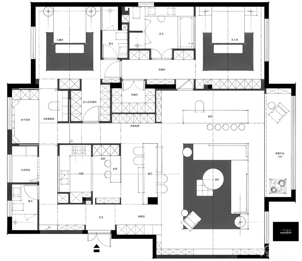
另一方面空间功能太单一,配置过低,无法提供给业主满意的生活质量。
通过对原有格局的大部分改变。扩大了客厅的空间视野 增加了大体积的工作台
可作为茶吧,工作台,手工区,给全家人提供一个坐在一起共同活动交流的功能
利用原有的构造柱定做的可供八到十人的大体积餐桌。原有的厨房空间移位 增加了吧台功能 西厨空间 增加了大量的电器储物功能。
原厨房的窗户处,作为了生活阳台,满足洗衣晾晒功能。
原有的封闭的多功能房设计成了客房兼书房的空间 提供了单独的学习空间和光线充足的亲子空间。
利用移门 让空间成为既可以作为公共的书房亲自空间也可以作为儿童房的单独学习空间。
主人房和儿童房都增加了大量的储物以及各自单独的衣帽间 满足全家人的储物需求。







