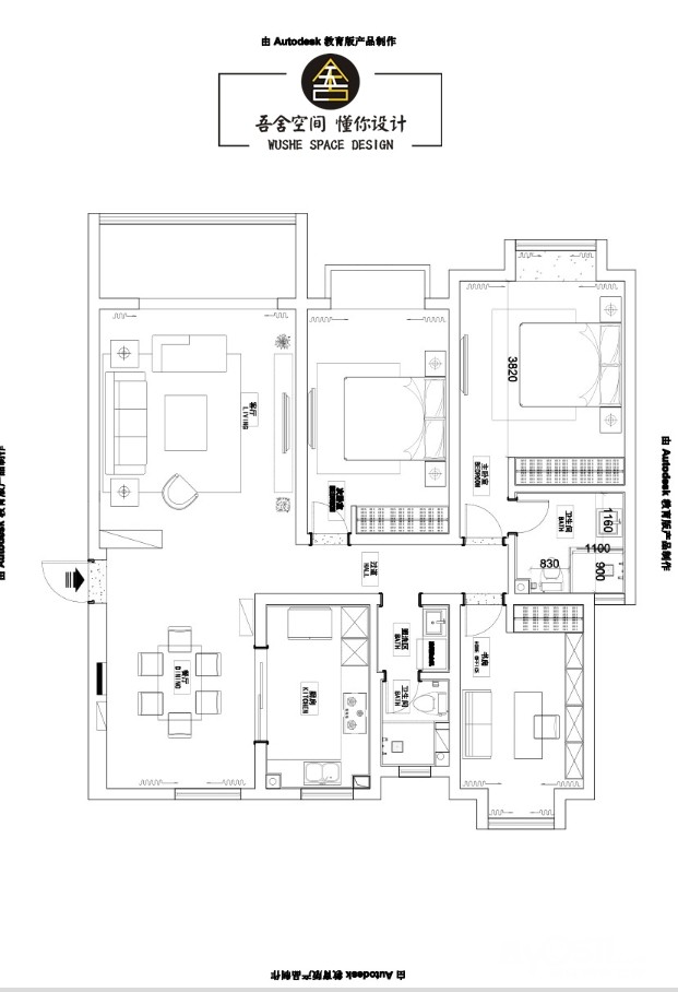
【项目名称】:中  海
【项目面积】:150㎡
【设计风格】:美  式
【模 式】:全 案
【常住人口】:三代同堂,五口之家
【主案设计】:•DESIGN•潘
 有人说,爱上某个地方是因为有一个你所爱的人。在某一个地方停留太久,便会生情于每一个细微的角落。爱上墙壁间新长的嫩绿,爱上路边偶然开放的一朵花,爱上陪你默默熬过煎熬岁月的每一幕画面,爱上与你朝夕相处的一抹云烟。
本案业主是理工生,一直在跟数据打交道的工程师,细致严谨中自带品味。女主人是位教师,平时慵懒有调调,非常感性注重生活品质,两人甚是互补。
有个活泼可爱的男孩,带着老人同住,因此,追求房间功能和产品舒适度的双重满足,对空间划分和层次我们做了很多的考究,装饰风格美式,为了探寻与塑造居住者所向往的生活方式,营造居住者与空间的情绪,我们在设计上删繁就简的设计,从品质生活的本质出发,打造一个舒适的居住空间。
米白与灰蓝的色彩组合在纷繁的闹市里传递一份儒雅,娴静。
淡雅的胡桃木家具形态上更加简洁清秀,空间配色上也更加轻松自然。

[ 本帖最后由 吾舍设计工作室 于 2020-9-25 13:53 编辑 ]
 

























