| 标题
快捷导航

精彩推荐:MY0511客户端下载

    • 中信银行镇江分行

    • 公益体彩 乐善人生

    • 鹏龙鸿蒙

    • 天然石材·人造石

    » 梦溪论坛 » 家庭装修 » 至简——协信太古城现代完工实景
    家庭装修  >  [完工毕业照] 至简——协信太古城现代完工实景     
    查看: 44808  回复: 28
    [完工毕业照] 至简——协信太古城现代完工实景      查看: 44808  回复: 28
    • 来自 江苏省
    • 精华 3
    • 注册 2013-8-6
    • 行业 IT 通信
    •  
    至简——协信太古城现代完工实景

    项目地址 /   镇江协信太古城

    项目面积 /   135m2

    项目风格 /   现代

    设计单位 /   佰壹营造

    施工单位 /   佰壹施工



    有这么一个说法,

    家就是在做加减乘除,

    给一个空房子,

    往里边不断的添东西,

    加一点颜色,添一点物料,

    给一点人情味儿,就是一个家了。


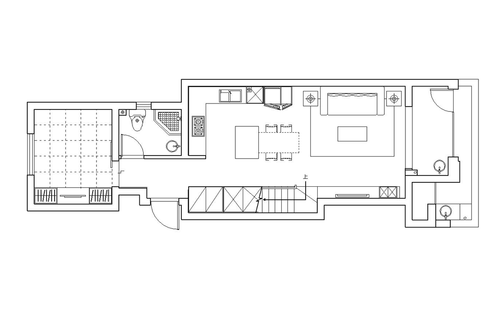
    — 户型图 —



    [ 本帖最后由 my0511唐老鸭 于 2019-11-4 10:12 编辑 ]





                      
    • 来自 江苏省
    • 精华 3
    • 注册 2013-8-6
    • 行业 IT 通信
    •  

    —  门厅  —

    房子的根本核心是居住,以最适合他们的方式去呈现整个居住状态。


    —  客厅  —

    一张舒适的大沙发,小巧精致的茶几,

    在阳光射进来时,斜躺在沙发中,或者地毯上,一杯咖啡,一本喜爱且怡情的书,乃人间最美的享受。



    [ 本帖最后由 my0511唐老鸭 于 2019-11-4 10:02 编辑 ]




    • 来自 江苏省
    • 精华 3
    • 注册 2013-8-6
    • 行业 IT 通信
    •  

    —  餐厅及厨房  —

    岛台和餐桌合并设计,充当日常使用的餐桌,盛放美味和幸福的岛台餐桌,可以说是餐厨区域的颜值C位。



    [ 本帖最后由 my0511唐老鸭 于 2019-11-4 10:03 编辑 ]




    • 来自 江苏省
    • 精华 3
    • 注册 2013-8-6
    • 行业 IT 通信
    •  

    —  多功能房  —

    每个家庭都需要这样一个空间,毋须明确的定义,这样便可以融合各种可能。  


    —  客卫  —


    —  阳台  —

    闲暇时,午后小酌的吧台,十分惬意。



    [ 本帖最后由 my0511唐老鸭 于 2019-11-4 10:04 编辑 ]




    • 来自 江苏省
    • 精华 3
    • 注册 2013-8-6
    • 行业 IT 通信
    •  

    —  二楼过道  —

    在休息时读上一册书,弹上一首喜欢的曲子,未尝不是另一种休闲方式。   


    —  书房  —  

    书房里除了工作台还有一张折叠沙发,平时可以在书房学习,必要时可以当作客房招待客人。



    [ 本帖最后由 my0511唐老鸭 于 2019-11-4 10:06 编辑 ]




    • 来自 江苏省
    • 精华 3
    • 注册 2013-8-6
    • 行业 IT 通信
    •  

    —  女儿房  —

    把喜爱的色彩藏在空间里,在心仪的空间里入睡,梦也变得香甜了呢。


    —  卧室  —

    卧室,是自己私人的天地,一定要让自己觉得舒服,从这里出去,回到这里来,都是快乐美好的。


    —  主卫  —

    泡澡时放松身心,浅饮一口,思绪像在世界各地快速的旅行一番。



    [ 本帖最后由 my0511唐老鸭 于 2019-11-4 10:08 编辑 ]




    • 来自 江苏省
    • 精华 3
    • 注册 2013-8-6
    • 行业 IT 通信
    •  


    更多佰壹营造案例请点击:

    http://bbs.my0511.com/f1293b




    [ 本帖最后由 my0511唐老鸭 于 2019-11-4 10:13 编辑 ]




    • 来自 江苏省
    • 精华 19
    • 注册 2019-4-30
    • 行业 房产建筑
    •  






    • 来自 江苏省
    • 精华 0
    • 注册 2016-12-14
    •  

    设计师麻烦短个联系方式,年底拿房,比较喜欢莫兰迪色系,ins风格,这方面有没有实景案例,想参观一下,关注你家蛮久的了。




    • 来自 江苏省
    • 精华 19
    • 注册 2019-4-30
    • 行业 房产建筑
    •  


    QUOTE:
    原帖由 提里奥弗丁 于 2019-11-6 12:46 发表
    设计师麻烦短个联系方式,年底拿房,比较喜欢莫兰迪色系,ins风格,这方面有没有实景案例,想参观一下,关注你家蛮久的了。
    感谢支持
    已短




    • 来自 江苏省
    • 精华 0
    • 注册 2019-11-8
    •  

    好漂亮!是我喜欢的风格!




    • 来自 江苏省
    • 精华 19
    • 注册 2019-4-30
    • 行业 房产建筑
    •  


    QUOTE:
    原帖由 朝霞暮霭 于 2019-11-8 07:41 发表
    好漂亮!是我喜欢的风格!





    • 来自 江苏省
    • 精华 407
    • 注册 2016-10-30
    • 行业 房产建筑
    •  

    哇,这沙发和茶几跟我们公司里的好像




    • 来自 江苏省
    • 精华 5
    • 注册 2019-3-30
    • 行业 基础设施
    •  






    • 来自 江苏省
    • 精华 0
    • 注册 2019-3-7
    •  






    • 来自 江苏省
    • 精华 153
    • 注册 2014-12-11
    • 行业 房产建筑
    •  






    • 来自 江苏省
    • 精华 87
    • 注册 2017-9-7
    •  






    • 来自 江苏省
    • 精华 5
    • 注册 2019-3-30
    • 行业 基础设施
    •  






    • 来自 江苏省
    • 精华 19
    • 注册 2019-4-30
    • 行业 房产建筑
    •  






    • 来自 江苏省
    • 精华 0
    • 注册 2019-10-13
    • 行业 教育科研
    •  

    真好看,设计费怎么收啊




    • 来自 江苏省
    • 精华 19
    • 注册 2019-4-30
    • 行业 房产建筑
    •  


    QUOTE:
    原帖由 shangyuan 于 2019-11-16 17:06 发表
    真好看,设计费怎么收啊
    已短,请留意查收




    • 来自 江苏省
    • 精华 70
    • 注册 2018-3-2
    • 行业 房产建筑
    •  

    电竞椅cool




    • 来自 江苏省
    • 精华 0
    • 注册 2019-11-25
    •  

    多少钱这个




    • 来自 江苏省
    • 精华 19
    • 注册 2019-4-30
    • 行业 房产建筑
    •  


    QUOTE:
    原帖由 m00n 于 2019-11-26 15:36 发表
    多少钱这个
    你好  已短




    • 来自 江苏省
    • 精华 0
    • 注册 2008-9-1
    • 行业 商业贸易
    •  






    • 来自 江苏省
    • 精华 0
    • 注册 2011-12-17
    • 行业 政府行政
    •  

    这套全包多少钱?




    • 来自 江苏省
    • 精华 0
    • 注册 2005-8-12
    •  

    设计师,麻烦短个联系方式, 这套房子的呈现有点我想要的那种极简利落的感觉




    • 来自 江苏省
    • 精华 0
    • 注册 2013-10-12
    •  

    请问小区环境和物业怎么样,居住人群怎么样




    查看积分策略说明快速回复主题
    您目前还是游客,请 登录注册
    您目前是游客,本帖已被系统设置了自动关闭,不可回复!

    0/5000字

     
    < >
     

    Powered by Discuz! X 2 0.048819 s 清除 Cookies - 镇江网友之家 - 手机版
    论坛导航 关闭