
等你
等你在三月的春光里
三月的风是柔软的
河畔的杨柳如烟般
山上的桃花正艳红
我在三月的春光里等着你
等你来赴一场姹紫嫣红的盛宴!
户型信息
《项目地址》:扬中公馆11栋
《项目户型》:三室两厅
《实际面积》:130平方
《设计风格》:现代极简
《设计公司》:张飞——三鬼设计
《项目施工》:三月装饰(吾悦写字楼)
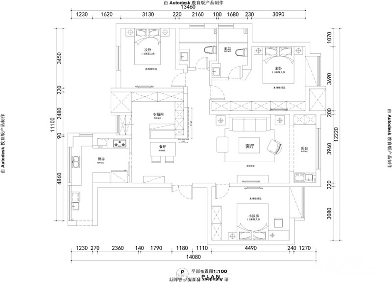
平面布置图

本户型是设计改造的第五个类似户型,结构上有几个痛点,
一是厨房不宽敞,二是餐厅不够宽,放完餐桌基本两边走人都有点不方便,
所以结合业主的需求将厨房与北面的阳台合并做宽敞的厨房,
餐厅与储物间合并,利用储物间的空间做个卡座,这样餐桌就能靠边摆放,腾出走人的动线出来。
[ 本帖最后由 my0511唐老鸭 于 2019-3-4 13:42 编辑 ]






























是的 节省预算 也能迎合市场低价竞争





