
【报名方式】:QQ报名:
电话报名:0511—88985388 18061185108
微信报名:

家装去哪儿?
无体验,不装修!
想零距离参观正在装修或装修好的样板房?
想了解施工知识,解决装修疑问、体验装修实录?
请到这里来:
万家基和装饰样板房直通车系列活动,为您的装修长途一路护航,引你遇见未来的家!
细致造就差别
真诚打动人心
每一个工地都凝结了设计师和施工人员的智慧和汗水
进步就是永不停步!
样板房活动详情如下
【集合时间】:2018年9月9号上午9点(星期日)
【集合地点】:万家基和装饰公司(学府路欧尚超市旁中国银行楼上)
【活动流程】:
9:00公司签到
9:30出发参观半成品:紫榭丽舍1-1504(深入了解核心水电工艺)
10:30参观成品:凤凰和润3-408(软装家居全部进场,欣赏设计之美)
11:30用餐
12:30装修大课堂
13:30设计咨询
为了保证参观和学习的效果,限20户,以先报名为先装修课堂主讲人张总

课堂主题:六大预防核心工艺分享

往届样板房活动展示






公司地址:
关注我们了解更多
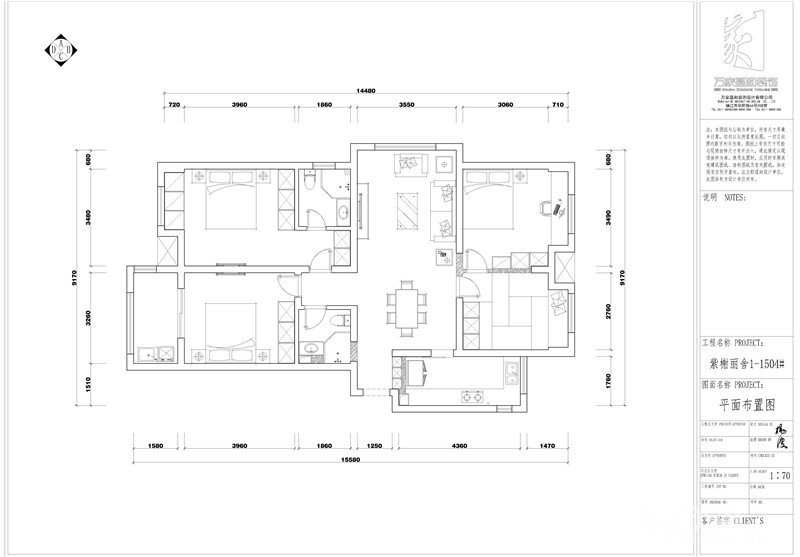
半成品水电参观:紫榭丽舍1-1504【建筑面积】:124平方
【设计风格】:新中式
【工程造价】:6.9万(半包)
【设计师】:杨波

【工程部负责人】:袁成林
【项目经理】:
户型展示
原始户型图

平面设计图

客厅效果图

客餐厅效果图


餐厅效果图

卧室效果图

【此处为站外链接,请谨慎打开】
手机扫码观看

成品工地参观:凤凰和润3-408【建筑面积】:120平方
【设计风格】:简美风格
【工程造价】:6.4万(半包)
【设计师】:胡强

【工程部负责人】:
【项目经理】:
户型展示
原始户型图

平面设计图

720°全景效果图预览

【此处为站外链接,请谨慎打开】
手机扫码观看

[ 本帖最后由 万家基和客服 于 2018-9-4 14:04 编辑 ]













































