
此帖已成功报名2017家装日记大赛。更多家装信息关注MY0511家装频道
曾遥不可及的梦想!今触手可得的温暖!
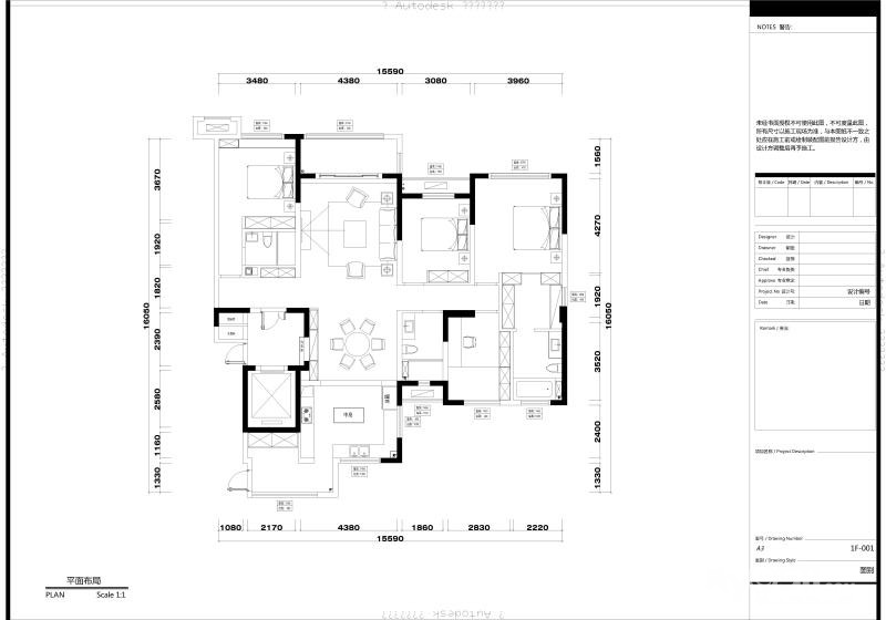
【小区名称】:万科沁园
【所在楼层】:18
【建筑面积】:203.23
【装修风格】:现代简约
【包工方式】:清包
【装修公司】:
【开工日期】:2017.8.17(农历6月26日)
【装修预算】:30万(硬装,估计不够,尽量控制着)
【户型图片】:
欢迎加入家装官方VIP别墅QQ群 群号:565444352

家宅平安年年富 新居和顺天天美
2017.8.17万科沁园装潢开工大吉


购房经历:
2016年6月中旬:因到我姐姐家有事(住万科沁园),偶然得知该楼盘的一些信息,便立马前往看样板房。一见样板房户型便爱不释手,户型好,光照充足,面积大……于是当机立断第二天下手交定金。因手中仍有2年前刚给儿子准备的婚房未脱手,接下来的日子便是急速卖方(此处应该有掌声,在亏本10多万情况下出手,只因看中更好的房子,为了更好的生活)。现在因宁镇扬一体化宣传,南徐板块房价极速飙升,细想来亏10多万换此处房子也是值得!



题外话:
当时我姐姐犹豫了2天,第3天去想买时全部卖完。现在房价飙升,她一想此事就后悔。
[ 本帖最后由 my0511菲雪 于 17-10-10 14:32 编辑 ]
















































原来如此
