| 标题
快捷导航

精彩推荐:MY0511客户端下载

    • 中信银行镇江分行

    • 公益体彩 乐善人生

    • 鹏龙鸿蒙

    • 天然石材·人造石

    » 梦溪论坛 » 家庭装修 » 企屋设计 » 企屋设计出品----在几月几日,蓝调Double Bass的正确打开方式...
    企屋设计  >  企屋设计出品----在几月几日,蓝调Double Bass的正确打开方式...     
    查看: 9426  回复: 2
    企屋设计出品----在几月几日,蓝调Double Bass的正确打开方式...      查看: 9426  回复: 2
    • 来自 江苏省
    • 精华 105
    • 注册 2009-9-4
    • 行业 房产建筑
    •  
    企屋设计出品----在几月几日,蓝调Double Bass的正确打开方式...

    【设计项目几月几日 · 生活体验馆

    【设计单位:企屋设计

    【施工单位:企屋设计

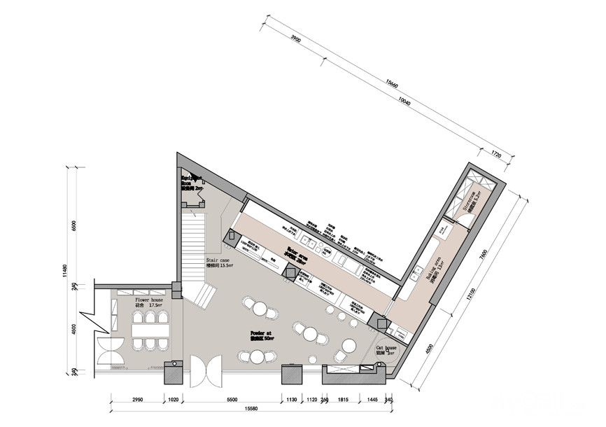
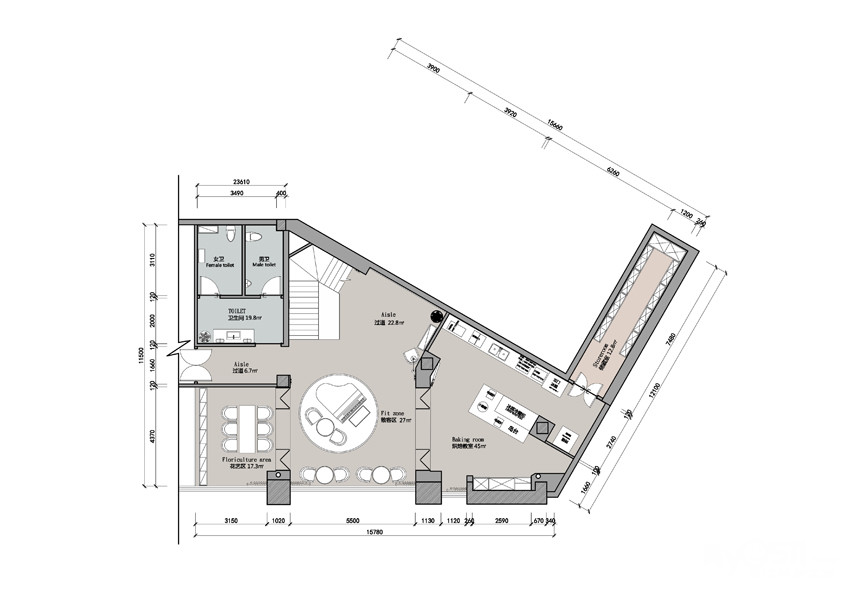
    平面图片:见下


    一楼平面布置图



    二楼平面布置图






    你现在的气质里,藏着你走过的路,读过的书和爱过的人。

    ———电影《卡萨布兰卡》


    而非单一的表现设计师self













    形成了一种无形的分割。黑色的钢板扶手诠释男业主的Power墨绿的丝绒软包诠释女业主的Jazz......







    动作轻逸的围绕

    一直蔓延,漫漫,漫漫到二楼









    “我想让我的客户可以看到我的工作,我的学员们我敬重每一个出炉的面包。它们简单而真挚,向我们传递了返璞归真的生活美学。”








    keewoe design

    花絮







    外立面改造





    Remember when life museum......

    记得那天阳光正好,一首Jazz, 一杯咖啡......一个人



    惊艳到你的味蕾、并扎根于你的记忆的

    可能是一块口感轻盈丝丝入扣的甜点

    一碗汤底浓郁面条筋道的拉面

    一份寒夜送上门的热腾腾的外卖

    或是见证了从膨胀站立到撒上糖霜全过程的

    带着灵魂的、活的面包


    ...



    [ 本帖最后由 企屋设计 于 18-4-13 10:46 编辑 ]





                      
    • 来自 江苏省
    • 精华 2
    • 注册 2018-3-13
    •  






    查看积分策略说明快速回复主题
    您目前还是游客,请 登录注册
    您目前是游客,本帖已被系统设置了自动关闭,不可回复!

    0/5000字

     
    < >
     

    Powered by Discuz! X 2 0.063738 s 清除 Cookies - 镇江网友之家 - 手机版
    论坛导航 关闭