| 标题
快捷导航

精彩推荐:MY0511客户端下载

    • 中信银行镇江分行

    • 公益体彩 乐善人生

    • 鹏龙鸿蒙

    • 天然石材·人造石

    » 梦溪论坛 » 家庭装修 » 企屋设计 » 企屋设计2017年出品------《廷尚生活》欧式混搭风格实景
    企屋设计  >  企屋设计2017年出品------《廷尚生活》欧式混搭风格实景     
    查看: 18260  回复: 17
    企屋设计2017年出品------《廷尚生活》欧式混搭风格实景      查看: 18260  回复: 17
    • 来自 江苏省
    • 精华 105
    • 注册 2009-9-4
    • 行业 房产建筑
    •  
    企屋设计2017年出品------《廷尚生活》欧式混搭风格实景

    企屋设计2017年出品------《廷尚生活》欧式混搭风格实景

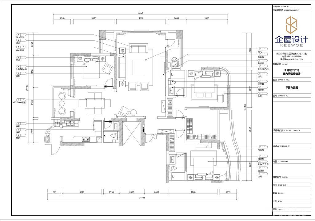
    【小区名称】永隆城市广场雍景苑

    【所在楼层26楼

    【建筑面积】200㎡

    【装修风格】欧式混搭风格

    【包工方式:全包

    【设计公司:企屋设计

    【装修公司:企屋设计

    【软装陈设:企屋陈设

    【摄影:ingallery摄影

    【完工日期2017年3月

    户型图片:见下





    [ 本帖最后由 企屋设计 于 17-4-26 14:05 编辑 ]





                      
    • 来自 江苏省
    • 精华 105
    • 注册 2009-9-4
    • 行业 房产建筑
    •  

    当你在城里盖一所房子之前,先在野外用你的想象盖一座凉亭。

    因为你黄昏时有家可归,而你迷茫时、更孤寂的漂泊的精魂,也有个归宿。

    你的房屋是你较大的躯壳。

    而你房子的样子是你的内在气质。



    本案是一套200㎡的平层,在与业主交流以后设计风格达成一致,

    既要美观更要满足现代人居住宅的高端需求,整个空间综合了现代感、东方内敛、柔和、

    自然主义的美学精神、新古典的典雅、大气、庄重之感。

    可以满足一些当代人对于自然、地域文化、自由精神的内心需求。




    [ 本帖最后由 企屋设计 于 17-4-26 15:10 编辑 ]




    • 来自 江苏省
    • 精华 105
    • 注册 2009-9-4
    • 行业 房产建筑
    •  

    本案拥有一个40㎡的大客厅,可以媲美别墅客厅。

    素色的墙面更能留得住年华,而背景墙面中选用了含有“清明上河图”画面的墙纸为点缀,

    配以山水彩绘的椅面,在空间中添加内敛的东方情感,总有一些不得不诉说的东方情怀在心中。


    恰到好处的生活,别样的精致。

    柔和婉约的线条在斑驳交映的阳光下,点缀了日子。

    少了一份媚俗,却在细水长流的感受与发现中,惊艳了岁月。



    [ 本帖最后由 企屋设计 于 17-4-26 15:12 编辑 ]




    • 来自 江苏省
    • 精华 105
    • 注册 2009-9-4
    • 行业 房产建筑
    •  

    相处于同一个空间客厅与过道难以找到一条很好的分割线,
    错落的顶面是最好的选择,空间与空间的完美对接,并演绎了一派拥有独特质感的空间意境。


    在一个温暖的午后品一杯红茶,读一本好书,
    慵懒地陷入沙发中,遐想一场跨越时空的对话,
    仔细的品读每一次字的愉悦,任时光从指缝中溜走。




    [ 本帖最后由 企屋设计 于 17-4-26 15:16 编辑 ]




    • 来自 江苏省
    • 精华 105
    • 注册 2009-9-4
    • 行业 房产建筑
    •  

    厨房的空间相对与整体来说是偏小的,于是我们采用了开放式厨房的方式延伸空间,
    餐厅墙面与客厅做法相同,加上意境的装饰画再一次加深东方韵味。





    [ 本帖最后由 企屋设计 于 17-4-26 15:15 编辑 ]




    • 来自 江苏省
    • 精华 105
    • 注册 2009-9-4
    • 行业 房产建筑
    •  

    主卧





    [ 本帖最后由 企屋设计 于 17-4-26 15:17 编辑 ]




    • 来自 江苏省
    • 精华 105
    • 注册 2009-9-4
    • 行业 房产建筑
    •  

    次卧1



    次卧2



    [ 本帖最后由 企屋设计 于 17-4-26 15:18 编辑 ]




    • 来自 江苏省
    • 精华 105
    • 注册 2009-9-4
    • 行业 房产建筑
    •  

    卫生间及过道







    美不是一种需要,只是一种快乐。

    她不是干渴的口,也不是伸出的空虚的手,

    却是发焰德信,陶醉的灵魂。



    [ 本帖最后由 企屋设计 于 17-4-26 15:19 编辑 ]




    • 来自 江苏省
    • 精华 0
    • 注册 2017-7-1
    •  

    这套很喜欢哦




    • 来自 江苏省
    • 精华 1
    • 注册 2009-6-19
    • 行业 其它
    •  

    喜欢,看见我们的进口人字拼地板了。




    • 来自 江苏省
    • 精华 0
    • 注册 2013-6-12
    • 行业 政府行政
    •  

    这套全包造价多少




    • 来自 江苏省
    • 精华 105
    • 注册 2009-9-4
    • 行业 房产建筑
    •  


    QUOTE:
    原帖由 jackw1221 于 17-7-15 18:08 发表
    这套全包造价多少
    已在站内短消息进行回复,请注意查看。




    • 来自 江苏省
    • 精华 0
    • 注册 2017-8-1
    •  

    看着很大气,舒服




    • 来自 江苏省
    • 精华 0
    • 注册 2018-1-29
    •  

    肯定很贵




    • 来自 江苏省
    • 精华 0
    • 注册 2010-9-14
    • 行业 其它
    •  

    高端大气,总价多少?




    • 来自 江苏省
    • 精华 105
    • 注册 2009-9-4
    • 行业 房产建筑
    •  


    QUOTE:
    原帖由 weiyuxuan030107 于 2018-10-25 10:00 发表
    高端大气,总价多少?
    您好,可以加下客服微信为您服务哦
    wx:17768758739




    • 来自 江苏省
    • 精华 105
    • 注册 2009-9-4
    • 行业 房产建筑
    •  






    • 来自 江苏省
    • 精华 105
    • 注册 2009-9-4
    • 行业 房产建筑
    •  






    查看积分策略说明快速回复主题
    您目前还是游客,请 登录注册
    您目前是游客,本帖已被系统设置了自动关闭,不可回复!

    0/5000字

     
    < >
     

    Powered by Discuz! X 2 0.072762 s 清除 Cookies - 镇江网友之家 - 手机版
    论坛导航 关闭