| 标题
快捷导航

精彩推荐:MY0511客户端下载

    • 中信银行镇江分行

    • 公益体彩 乐善人生

    • 鹏龙鸿蒙

    • 天然石材·人造石

    » 梦溪论坛 » 家庭装修 » 镇江波涛装饰 » 波涛首席设计师-赵嘉伟
    镇江波涛装饰  >  [设计师简介] 波涛首席设计师-赵嘉伟     
    查看: 7786  回复: 5
    [设计师简介] 波涛首席设计师-赵嘉伟      查看: 7786  回复: 5
    • 来自 江苏省
    • 精华 173
    • 注册 2015-4-10
    • 行业 房产建筑
    •  
    波涛首席设计师-赵嘉伟



    姓名:赵嘉伟

    从业年限:8

    设计理念:设计是一种思考方式

    擅长风格:现代、轻奢、新中式、北欧,美式等


    服务楼盘:

    中南世纪城、吾悅广场、凤凰和润,中建大观,招商北固湾,领东天第、金桥花园,协信太古城、美的城,光明南郡,都市汇,恒泰蓝湾,绿地,巴黎都市,学林雅郡,远洋, 檀山嘉园,明发盛世嘉园,瑞丰嘉苑,紫榭丽舍......



    [ 本帖最后由 波涛装饰 于 2021-6-14 09:30 编辑 ]





                      
    • 来自 江苏省
    • 精华 173
    • 注册 2015-4-10
    • 行业 房产建筑
    •  


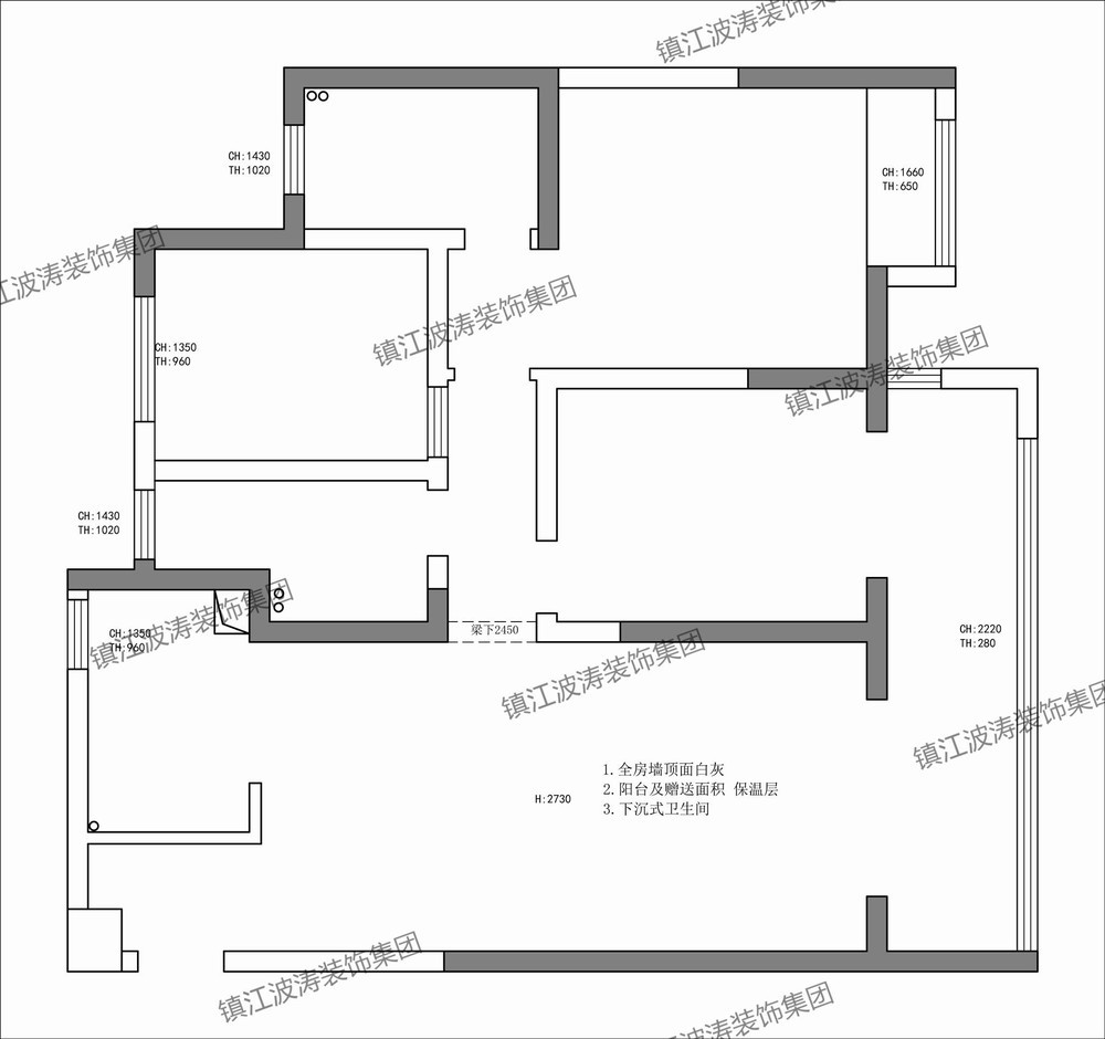
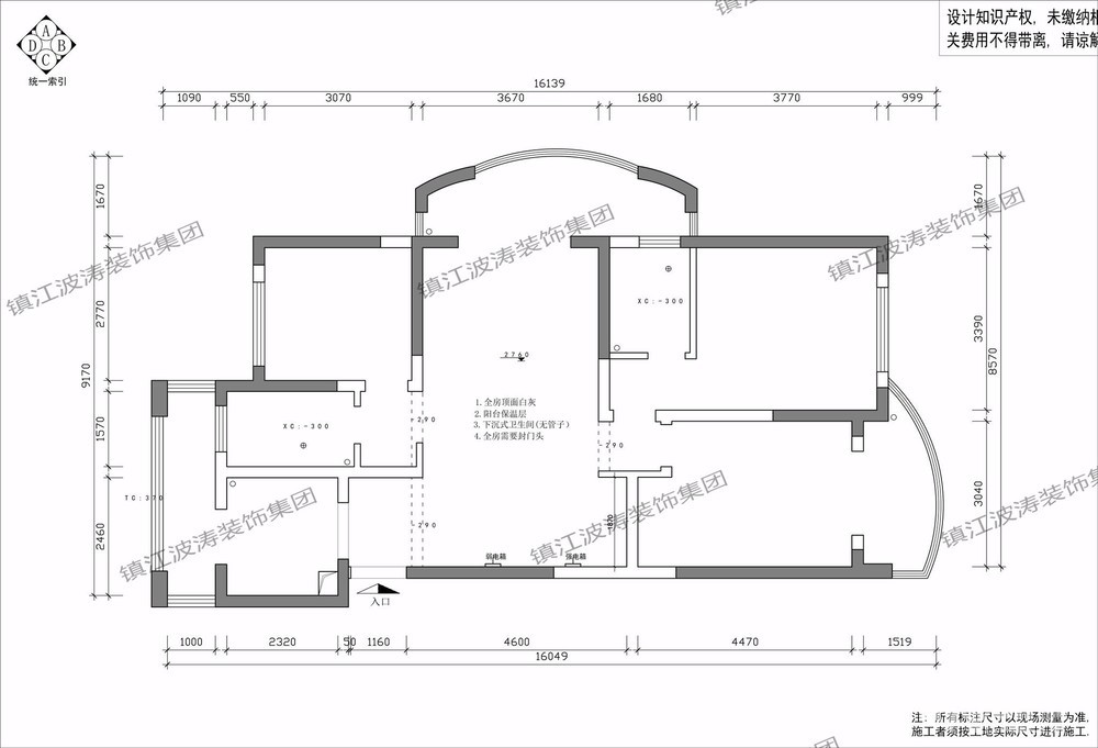
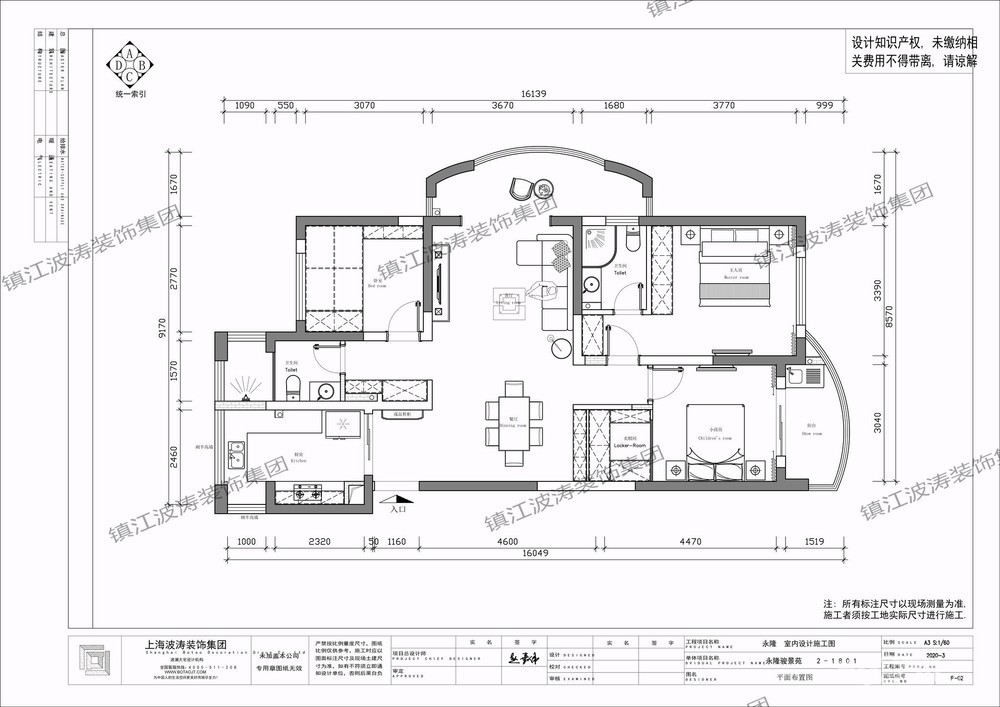
    1.永隆案例:

    ​平面图如下




    ​效果图链接:【此处为站外链接,请谨慎打开】




    [ 本帖最后由 波涛装饰 于 2021-6-12 15:06 编辑 ]




    • 来自 江苏省
    • 精华 173
    • 注册 2015-4-10
    • 行业 房产建筑
    •  
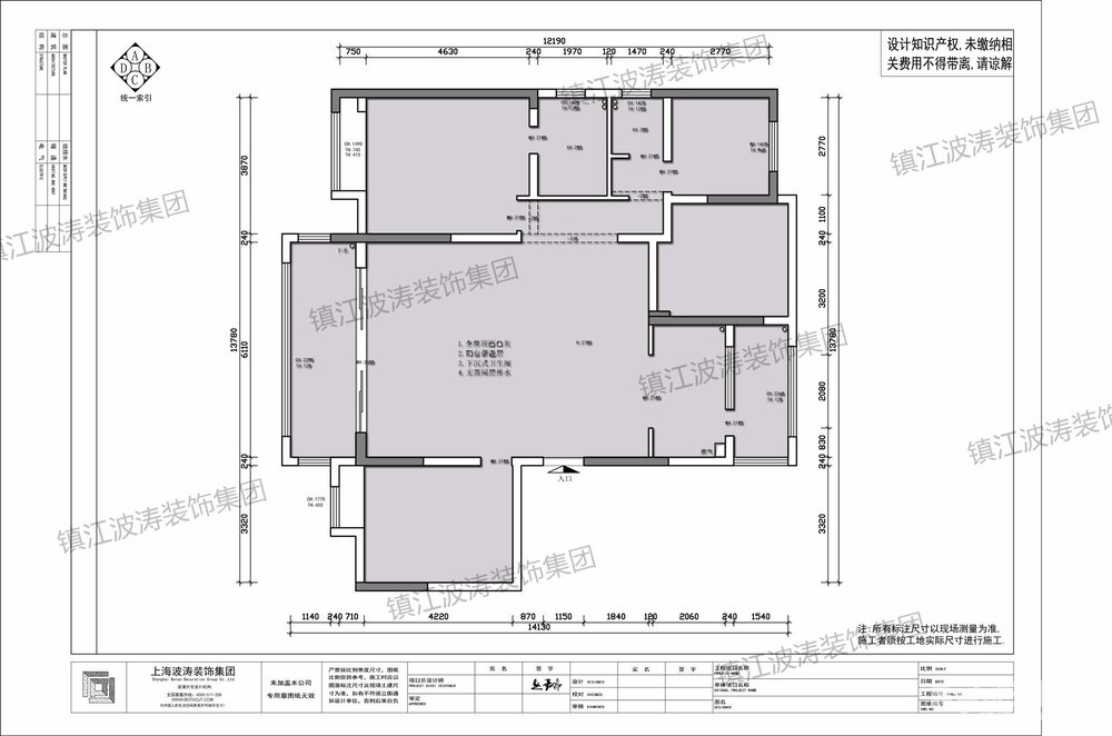
    紫晶香郡



    [ 本帖最后由 波涛装饰 于 2021-6-12 15:02 编辑 ]




    • 来自 江苏省
    • 精华 173
    • 注册 2015-4-10
    • 行业 房产建筑
    •  
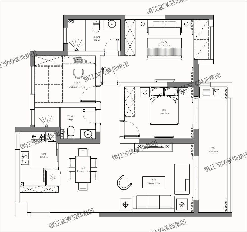
    吾悦广场

    平面图如下:
    【此处为站外链接,请谨慎打开】




    • 来自 江苏省
    • 精华 173
    • 注册 2015-4-10
    • 行业 房产建筑
    •  
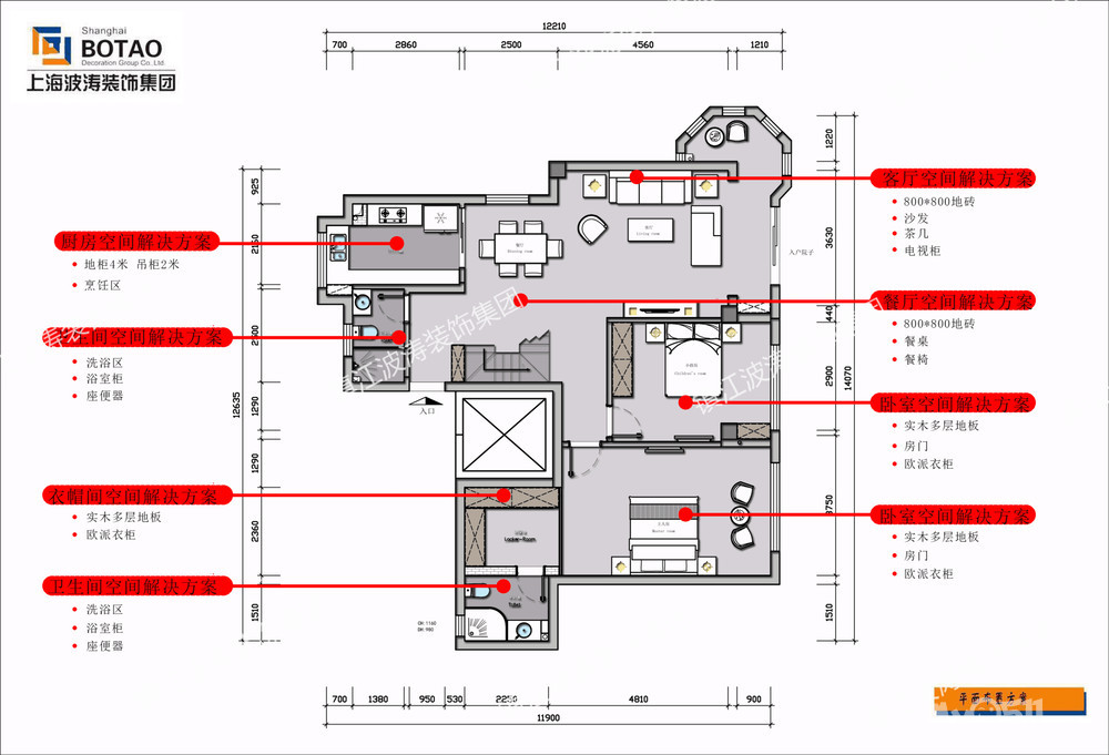
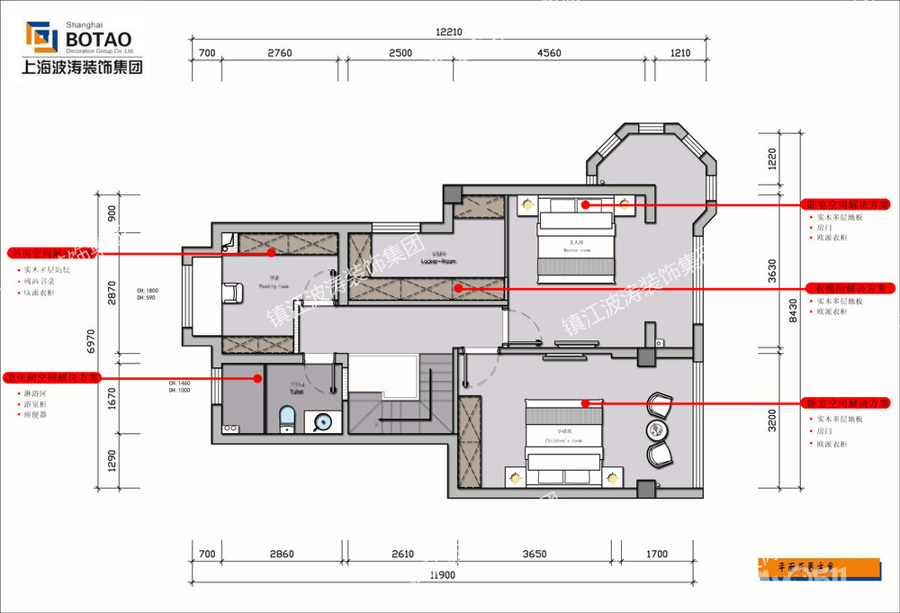
    中建大观

    平面图如下:
    效果图单张渲染如下:


    [ 本帖最后由 波涛装饰 于 2021-6-12 15:11 编辑 ]




    • 来自 江苏省
    • 精华 173
    • 注册 2015-4-10
    • 行业 房产建筑
    •  

    扫一扫10秒报价



    [ 本帖最后由 波涛装饰 于 2021-6-12 15:16 编辑 ]




    查看积分策略说明快速回复主题
    您目前还是游客,请 登录注册
    您目前是游客,本帖已被系统设置了自动关闭,不可回复!

    0/5000字

     
    < >
     

    Powered by Discuz! X 2 0.038934 s 清除 Cookies - 镇江网友之家 - 手机版
    论坛导航 关闭